書式ダウンロード お問い合わせ

光の演出が美しいRCデザイナーズマンション

ファータ・ディ・ルーチェ中目黒302号室

144,000 円 / 月

  • 居住用
  • 目黒区
  • 管理物件

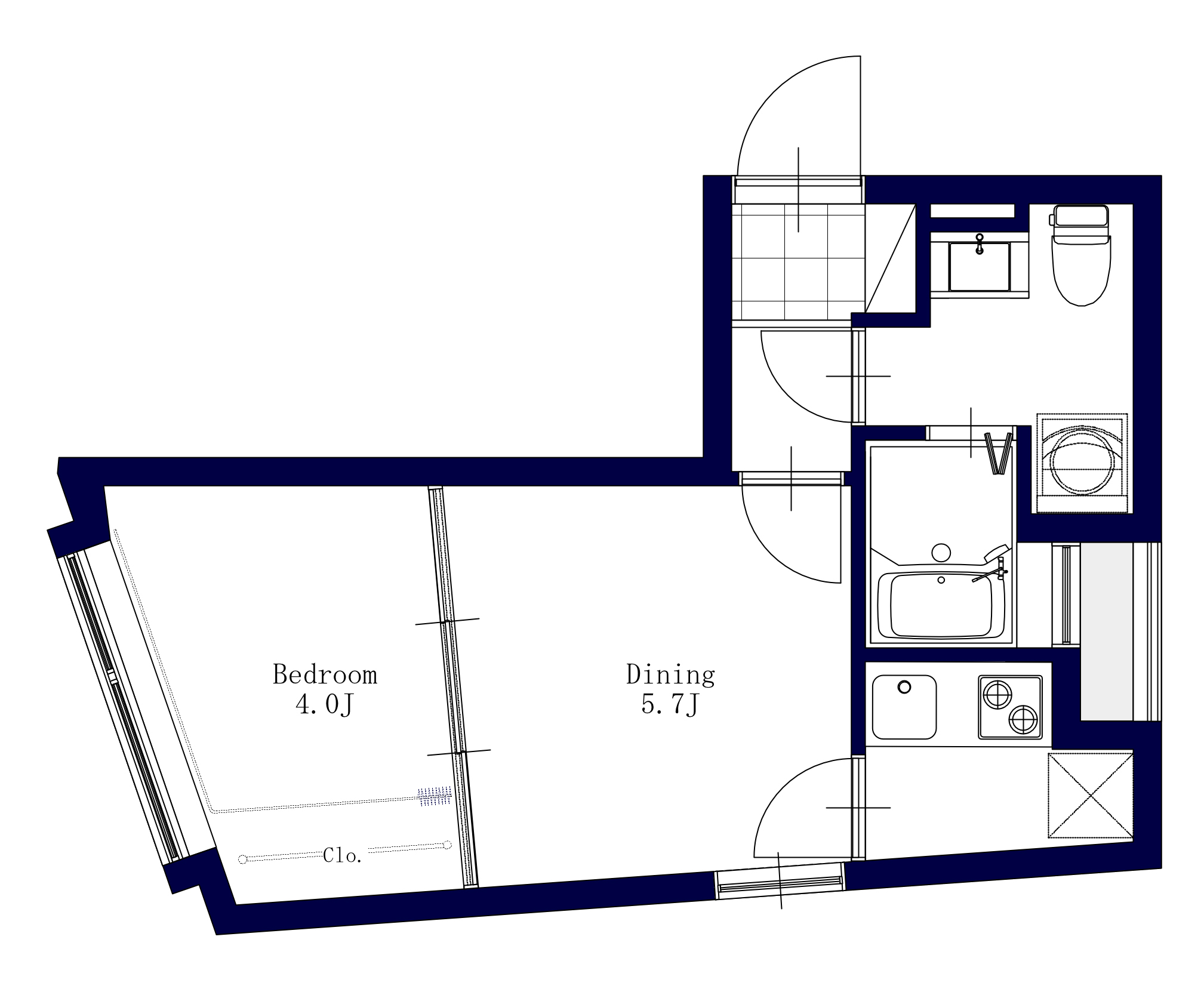
1DK

■ 山手通りから1本入った駅近ながら静かな環境
■ 「 Fata di luce」 は、イタリア語で“光の妖精” 光のアーチ天井が特徴のエントランス
■ 一部コンクリート打ち放しのスタイリッシュな内装、料理に便利な2口コンロ付き
■ オートロック・防犯カメラ完備、ALSOK導入済みでセキュリティ面も安心
■ インターネットは無料でご利用いただけます (下り最大速度 8Mbps)

  • 種別

    居住用

  • 用途

    マンション

  • 物件名

    ファータ・ディ・ルーチェ中目黒302号室

  • 部屋番号

    302

  • 所在地

    東京都目黒区中目黒3丁目5番31号

  • 交通

    東急東横線・東京メトロ日比谷線「中目黒」駅 徒歩6分
    東京メトロ日比谷線「恵比寿」駅 徒歩12分

  • 賃料

    144,000円 / 月

  • 共益費

    8,000円 / 月

  • 専有面積

    26.37㎡(7.98坪)

  • 間取り

    1DK

  • 構造規模

    鉄筋コンクリート造・陸屋根・地上5階建て

  • 築年月

    2018年 8月

  • 契約期間

    2年

  • 賃貸区分

    普通借家

  • 礼金

    1ヶ月

  • 敷金

    1ヶ月

  • ペット

    不可

  • 償却

  • 駐車場

  • 駐輪場

  • 保証会社

    必須 初回:賃料・共益費総額50%、年次:10,000円、月次:500円

  • 鍵交換代

    有 27,500円

  • 更新料

    1ヶ月

  • 保険等

    加入必須 18,000円 / 2年

  • その他費用

  • バルコニー

  • 現況

    入居中

  • 方位

  • 入居日

    2026年3月下旬

  • 取引態様

    専任媒介

  • 契約条件

    ペット 不可/楽器 不可

  • 環境・設備

    日当たり良好/閑静な住宅街/2階以上/角部屋/眺望良好/B・T別室/シャワートイレ/浴室乾燥機/システムキッチン/フローリング/エレベーター/照明器具/宅配ボックス/エアコン/CATV/光ファイバー/オートロック/モニタ付インターホン/防犯カメラ/24時間セキュリティ

  • 備考

    ALSOKセキュリティ/遮光カーテン・レースは残置物/インターネット無料(下り最大速度 8Mbps)