書式ダウンロード お問い合わせ

インターネット無料!広々ロフト付きのワンルーム

EVOL池尻 304号室

113,000 円 / 月

  • 居住用
  • 世田谷区
  • 管理物件

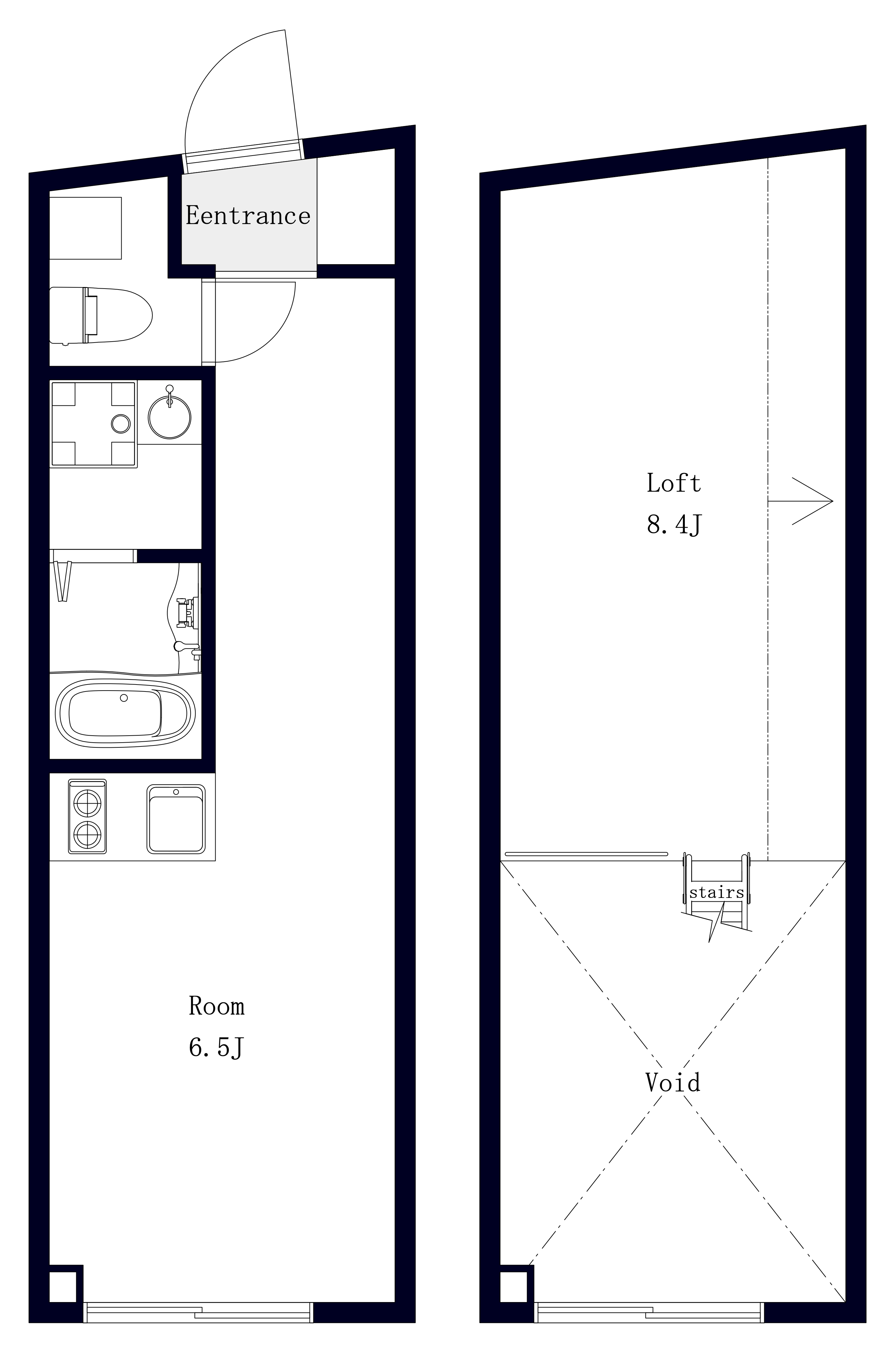
1R+Loft

■最上階・南向きの明るいお部屋
■ コンクリート打ち放しの壁がスタイリッシュな内装
■ オートロック・防犯カメラ付きでセキュリティ面も安心
■ 便利な2口コンロのキッチン、単身者に嬉しい宅配ボックスも完備
■ コンビニやスーパー、ドラッグストア等、生活に便利な周辺環境です

  • 種別

    居住用

  • 用途

    マンション

  • 物件名

    EVOL池尻

  • 部屋番号

    304号室

  • 所在地

    東京都世田谷区池尻4丁目21番3号

  • 交通

    東急田園都市線「池尻大橋」駅 徒歩10分
    京王井の頭線「駒場東大前」駅 徒歩14分

  • 賃料

    113,000円 / 月

  • 共益費

    8,000円 / 月

  • 専有面積

    22.96㎡(6.95坪)

  • 間取り

    1R+Loft

  • 構造規模

    鉄筋コンクリート造・陸屋根・3階建

  • 築年月

    2019年 11月

  • 契約期間

    2年間

  • 賃貸区分

    普通借家

  • 礼金

    1ヶ月

  • 敷金

    1ヶ月

  • ペット

    不可

  • 償却

  • 駐車場

  • 駐輪場

    無(駐輪スペース有(1住戸1台まで))

  • 保証会社

    必須 初回:賃料・共益費総額50%、年次:10,000円、月次:500円

  • 鍵交換代

    有 29,700円

  • 更新料

    1ヶ月

  • 保険等

    必須

  • その他費用

    緊急サービス料月額660円(税込)/更新事務手数料 新賃料の20%(税別)

  • バルコニー

  • 現況

    入居中

  • 方位

  • 入居日

    相談

  • 取引態様

    専任媒介

  • 契約条件

    ペット 不可/楽器 不可

  • 環境・設備

    日当たり良好/2階以上/B・T別室/シャワートイレ/浴室乾燥機/システムキッチン/IHクッキングヒーター/フローリング/ロフト/宅配ボックス/エアコン/オートロック/モニタ付インターホン/防犯カメラ

  • 備考

    駐輪スペース有り(1台まで)