書式ダウンロード お問い合わせ

神山町のヒルトップに位置する閑静な住宅地

神山町の土地

72,000 万円

  • 土地
  • 渋谷区
  • 社有物件
物件資料PDF

渋谷という都市の中心にありながら、喧騒から一線を画す住宅地「神山町」
近隣に広がる樹木を、まるで自邸の庭のような借景として望み、四季折々の緑を日常に取り込むことができます。
高低差を活かした設計により、眺望・採光・プライバシー性に優れた建築が可能
都会の真ん中にあることを忘れさせる、静謐な時間が流れる場所です

  • 物件名

    神山町の土地

  • 価格

    72,000万円

  • 所在地

    東京都渋谷区神山町15

  • 交通

    東急東横線・東急田園都市線・東京メトロ半蔵門線・東京メトロ副都心線・東京メトロ銀座線「渋谷」駅 徒歩11分
    JR山手線・JR埼京線・JR湘南新宿ライン「渋谷」駅 徒歩15分
    京王井の頭線「神泉」駅 徒歩13分
    東京メトロ千代田線 「代々木公園」駅 徒歩11分
    小田急小田原線 「代々木八幡」駅 徒歩14分

  • 土地面積

    167.22㎡(50.58坪)【公簿】
    159.74㎡(48.32坪)【実測】
    ※建築有効面積、別途道路後退部分2.56㎡

  • 権利

    所有権

  • 地目

    宅地

  • 接道

    西 公道 約4m 接道間口約19.3m

  • 用途地域

    第一種低層住居専用地域

  • その他の制限等

    第1種高度地区、最低敷地面積200㎡、高さ制限10M、日陰規制4h-2.5h/1.5m

  • 建ぺい率

    60%

  • 容積率

    150%

  • 建物面積

  • 敷地

  • 構造規模

  • 築年月

  • 駐車場

  • 現況

    更地

  • 引渡し

    相談

  • 取引態様

    売主

  • 備考

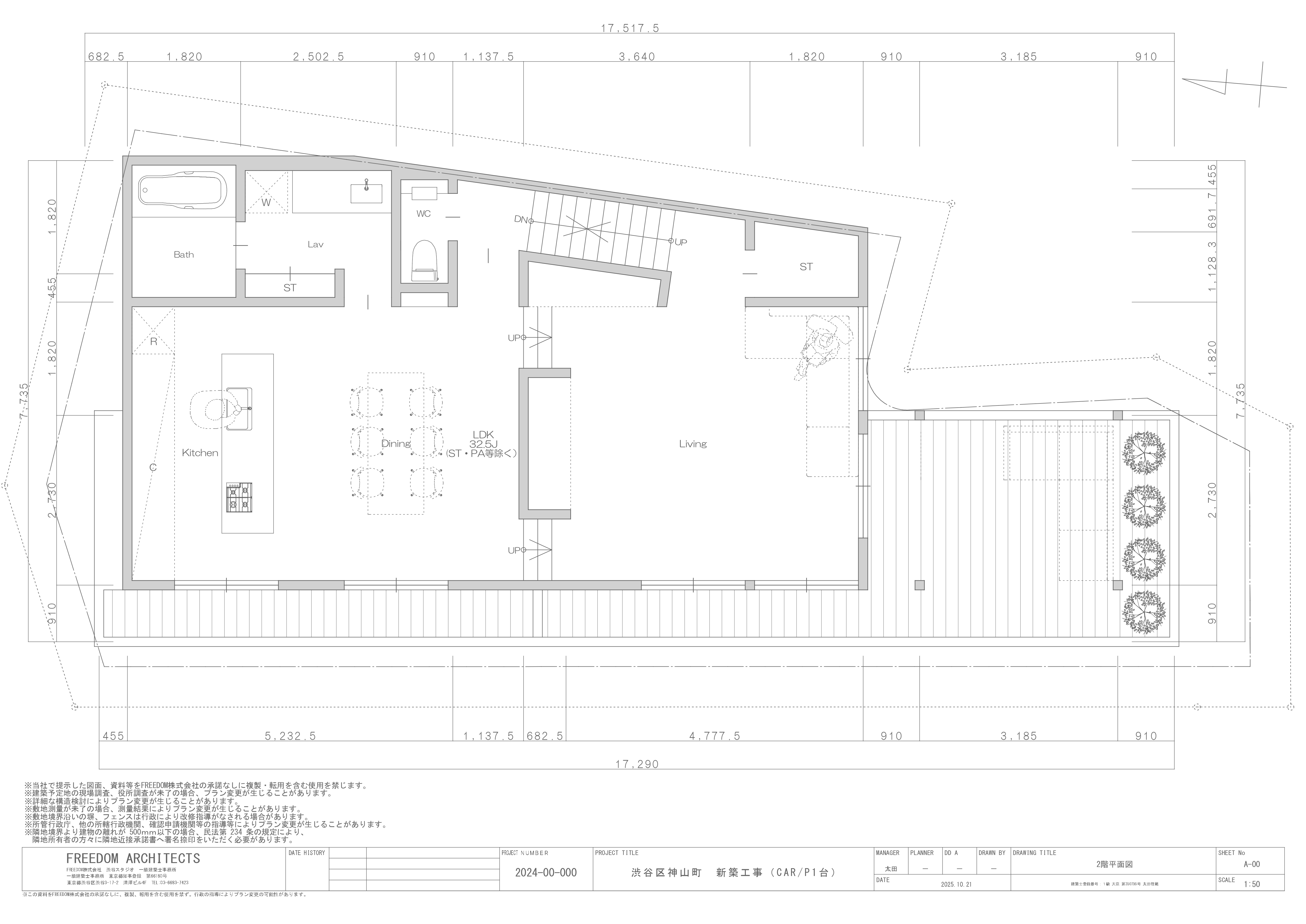
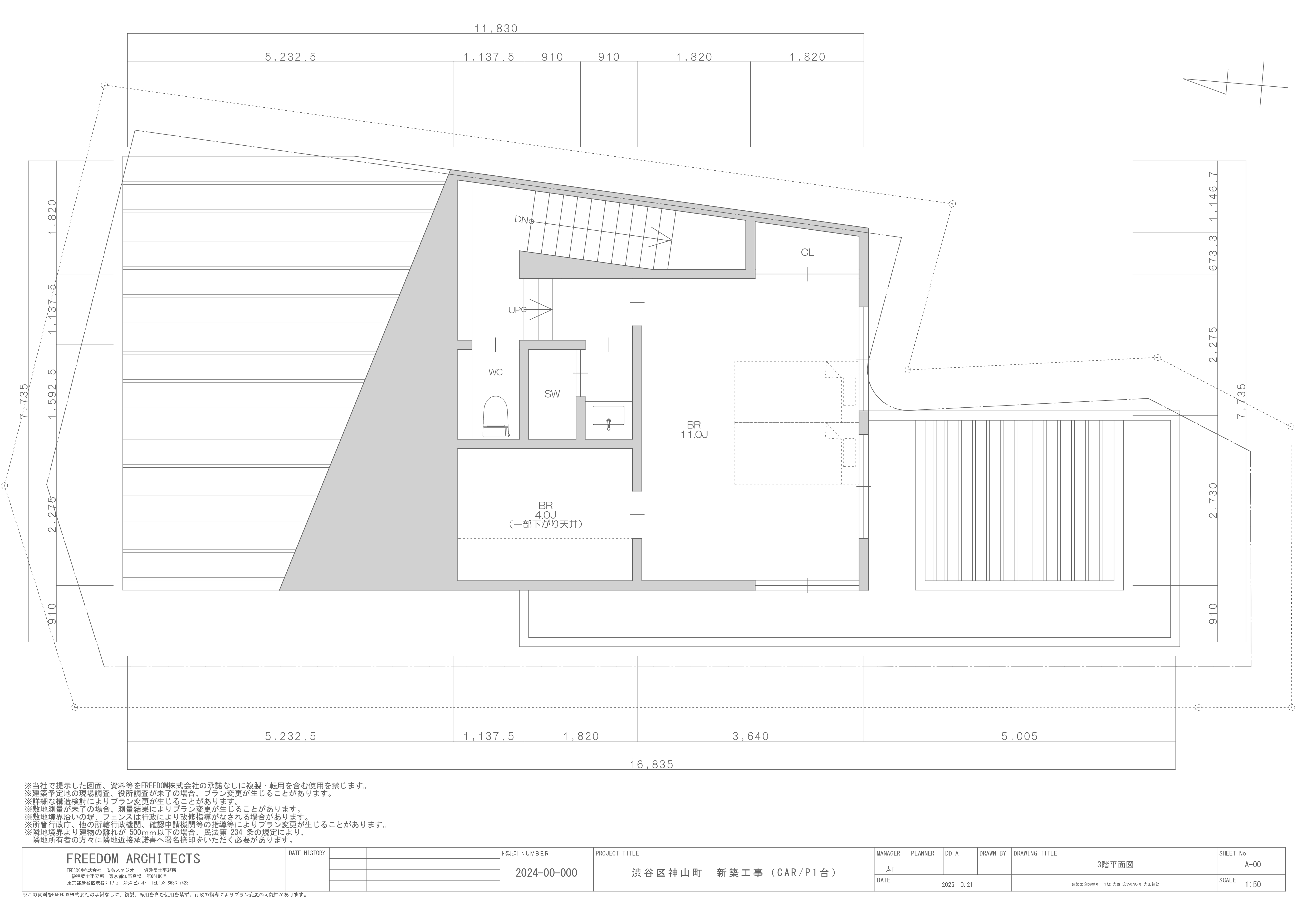
    建物参考プラン等資料は、上部「物件資料PDF」よりダウンロードにてご確認いただけます。
    その他、建物内装パースのご用意がございます。お気軽に資料請求ください。